Moderne große 178m² Doppelhaushälfte in ruhiger Wohnsiedlung in Top-Lage von Rumeln-Kaldenhausen
47239 Duisburg, Doppelhaushälfte zum Kauf
Objektdaten
Objektart
Haus
Objekttyp
Doppelhaushälfte
Nutzungsart
Wohnen
Vermarktungsart
Kauf
PLZ
47239
Ort
Duisburg
Bundesland
Nordrhein-Westfalen
externe Objnr
25JD024EFH
Wohnfläche
178 m²
Nutzfläche
60 m²
Grundstücksgröße
264 m²
Anzahl Zimmer
5
Anzahl Badezimmer
2
Baujahr
1964
Endenergieverbrauch
161,95 kWh/(m²a)
Energieausweis
Verbrauchsausweis
Energieausweis gültig bis
20.08.2035
wesentlicher Energieträger
Öl
Energieeffizienzklasse
F
Kaufpreis
498.000,00 €
Außen-Provision
3,57% inkl. MwSt.
Ausstattung / Merkmale
Terrasse
Keller
Objektbeschreibung
Beschreibung
Ein wundervolles, saniertes Haus für die Familie! Diese Doppelhaushälfte steht in einem ruhigen und beliebten Wohngebiet von Duisburg Rumeln-Kaldenhausen und wartet auf neue Eigentümer! Die im Jahr 1964 erbaute Immobilie wurde ab 2016 umfangreich saniert und präsentiert sich in einem hervorragenden einzugsbereiten Zustand.Sie betreten die Immobilie in einem hochwertig mit Marmor gefliesten und hellen Eingangsbereich. Von diesem erreichen Sie sowohl das große Wohnzimmer mit edlem Stäbchenparkett und Austritt auf die Terrasse, wie auch das Gäste-WC und die Küche.
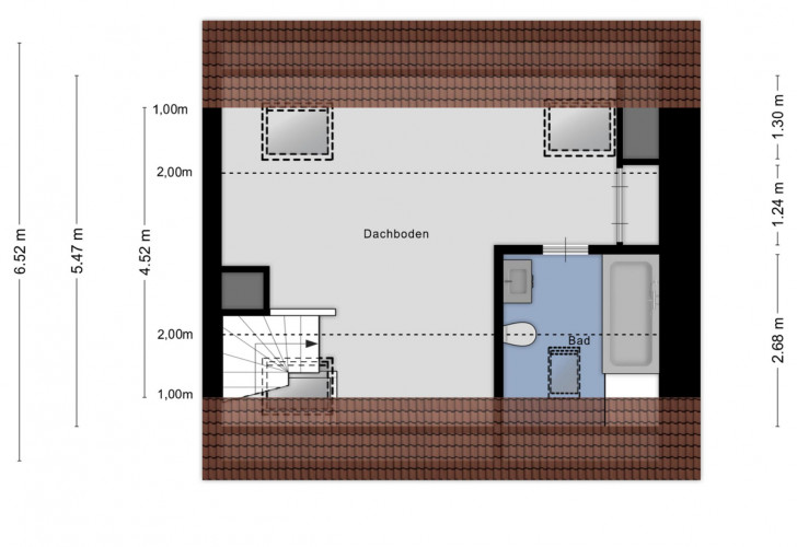
Im Obergeschoss finden Sie zwei klimatisierte Schlafzimmer vor, die ideal als Kinderzimmer dienen. Des Weiteren befindet sich hier das erste von zwei Badezimmern mit Dusche und Badewanne. Über einen weiteren Raum, der derzeit als Büro genutzt wird, gelangen Sie in den nachträglich ausgebauten ca. 40qm großen Spitzboden mit zwei neuen Dachgauben, der in der Wohnfläche einberechnet ist und genehmigt werden kann, also zur Fläche von 178m² berechnet wurde. Die Genehmigung ist bereits geprüft. In diesem Spitzboden befindet sich das große Elternschlafzimmer mit Klimaanlage und weiterem Badezimmer mit Badewanne. Derzeit beträgt die offizielle Wohnfläche 138,m².
Der Keller teilt sich auf drei verschiedene Räume auf. Neben dem Heizungskeller finden Sie hier einen Abstellraum vor sowie einen großen, beheizten Hobbyraum mit mehreren Fenstern und Ausgang in den Garten. Hier befinden sich ebenfalls die Anschlüsse für Ihre Waschmaschine und Trockner.
Der Garten ist ansprechend groß und dennoch pflegeleicht. Durch die Einfriedung mit einem modernen Gartenzaun und bereits bestehender nachbarschaftlicher Bepflanzung, ist der Garten blickgeschützt und bietet Sonnen- sowie Schattenplätze. Unter der elektrischen Markise lassen Sie entspannt den Abend ausklingen.
Ausstattung
Räumlich:- Wohnzimmer
- Küche
- Gäste-WC
- 2 Kinderzimmer OG
- Badezimmer OG
- Büro OG
- Spitzboden nachträglich ausgebaut
- großer Kellerraum / Hobbyraum beheizt
- Abstellraum Keller
- neue Dacheindeckung mit Dämmung
Technisch:
- Böden: Fliesen, Parkett, Laminat
- Elektrik größtenteils erneuert
- Bäder in 2016 / 2021 erneuert
- Kunststofffenster doppelverglast aus 2016
- Holzfenster im Keller aus Baujahr
- Rollos manuell (Wohnzimmer und Spitzboden elektrisch)
- 3 Klimaanlagen in den Schlafzimmern
- Elektrische Markise
- Garage mit elektrischem Rolltor und Gartentüre
Location
Das angebotene Haus befindet sich in einem der begehrten Stadtteile Duisburgs, inmitten einer ruhigen und familienfreundlichen Wohngegend. Die Nachbarstädte Moers und Krefeld sind schnell erreichbar.Dieses charmante Viertel zeichnet sich durch eine harmonische Mischung aus städtischem Komfort und naturnahem Wohnen aus. Die umliegende Infrastruktur bietet Ihnen erstklassige Annehmlichkeiten, darunter Schulen, Kindergärten und vielfältige Einkaufsmöglichkeiten für den täglichen Bedarf.
Die Innenstadt von Duisburg ist bequem in einer kurzen Fahrstrecke von ca.10,6 Kilometern erreichbar, was Ihnen ein reichhaltiges kulturelles und gastronomisches Angebot bietet. Die Nachbarstädte Krefeld und Moers sind ebenfalls in wenigen Kilometern zu erreichen. Zudem profitieren Sie von einer hervorragenden Anbindung an den öffentlichen Nahverkehr und die Autobahn, wodurch sowohl das Pendeln als auch spontane Ausflüge ins Grüne unkompliziert und zeitsparend gestaltet werden können.
In direkter Umgebung laden weitläufige Grünflächen zu erholsamen Spaziergängen oder sportlichen Aktivitäten ein. Des Weiteren befinden sich Tennisverein und Fußballverein in direkter Umgebung sowie das Naherholungsgebiet Töppersee mit Wasserskianlage, Schwimmbad und Beachvolleyball-Plätzen.
Diese ideale Lage bietet Ihnen die perfekte Kombination aus Ruhe und Erholung sowie der Nähe zur pulsierenden Stadtmitte von Duisburg.
Sonstige Informationen
Selektive - Ihr MehrwertmaklerAls besonderen Service bieten wir für Kaufinteressenten individuelle und unabhängige Finanzierungsberatungen an. Aus einer Vielzahl von Kreditgebern suchen wir für Sie das günstigste Angebot heraus und stellen Ihnen ein persönliches Konzept zusammen. Unsere Beratung ist für Sie selbstverständlich gebührenfrei.
Sie sind bereits Eigentümer einer Immobilie? Wir beraten Sie gerne und unverbindlich über Ihre Möglichkeiten. Ein Immobilienwertgutachten nach § 194 BauGB kann für Sie von unserem zertifizierten Gutachter erstellt werden. Besuchen Sie unsere Homepage www.selektive.de oder wenden Sie sich gleich an Ihren Immobilienprofi unter der Tel. 02841 88 99 60.
Als erstes etabliertes Maklerbüro am Niederrhein konnten wir den Qualitätsnachweis für IVD- Immobilienmakler und Hausverwalter die Verbandszertifizierung in Anlehnung an die DIN ISO 9000 ff erlangen. Seit 1994 sind wir Ihr verantwortungsbewusster Partner in Immobilienfragen.
Alle Angaben zum Objekt erfolgen im Namen unseres Auftraggebers und dienen einer ersten Information. Für die Richtigkeit und Vollständigkeit wird keine Haftung übernommen.
Karte
Die dargestellte Position der Immobilie ist nur eine ungefähre Angabe.






































