Neuwertiges-Gewerbeobjekt! Büro, Halle & Produktion mit Gartenanlage und Freisitz in Genend!
47506 Neukirchen-Vluyn, Halle zum Kauf
Objektdaten
Objektart
Hallen/Lager/Produktion
Objekttyp
Halle
Nutzungsart
Gewerbe
Vermarktungsart
Kauf
PLZ
47506
Ort
Neukirchen-Vluyn
Bundesland
Nordrhein-Westfalen
externe Objnr
24KPL003GK
Gesamtfläche
1.520 m²
Gewerbefläche
1.455 m²
Bürofläche
420 m²
Hallenfläche
1.034 m²
Lagerfläche
1.034 m²
Nebenfläche
65 m²
Grundstücksgröße
5.378 m²
Baujahr
2008
wesentlicher Energieträger
Luft/wasser Wärmepumpe
Kaufpreis
2.250.000,00 €
Ausstattung / Merkmale
Balkon
Terrasse
Objektbeschreibung
Beschreibung
Das vorliegende Gewerbeobjekt präsentiert sich auf einem großzügigen Grundstück von etwa 5.378 m² Fläche, das strategisch günstig gelegen ist und vielfältige Nutzungsmöglichkeiten bietet. Die Immobilie besteht aus drei Hauptkomponenten, die eine effiziente und funktionale Geschäftsumgebung ermöglichen, eine weitere Bebauung ist möglich:1. Gewerbehalle (Baujahr 2008):
Die Gewerbehalle erstreckt sich über eine Fläche von ungefähr 734,31m² und wird durch eine effiziente Wärmepumpe beheizt, die für angenehme Arbeitsbedingungen sorgt. Die Gewerbehalle verfügt über zwei großen Sektionaltore, welche großzügigen Raum für Produktions- oder Fertigungsaktivitäten bieten. Mit modernen Ausstattungsmerkmalen und einer soliden Bauweise aus dem Jahr 2008 gewährleistet sie eine effiziente Arbeitsumgebung für verschiedene gewerbliche Zwecke. Die Halle ist vielseitig anpassbar und ermöglicht eine optimale Nutzung der verfügbaren Fläche.
2. Lagerhalle (Baujahr 2011):
Die Lagerhalle, erbaut im Jahr 2011, bietet eine Fläche von rund 300,00 m² und ist mit einer großen Schiebetüranlage mit Fenstern ausgestattet, die für ausreichend Tageslichteinfall und Belüftung sorgt. Sie eignet sich ideal für die Lagerung von Waren, Rohstoffen oder anderen betrieblichen Bedarfsgegenständen und ermöglicht eine effiziente Lagerorganisation und einen reibungslosen Warenfluss.
3. Bürogebäude (Baujahr 2008):
Das Bürogebäude, das ebenfalls im Jahr 2008 erbaut wurde und durch eine Wärmepumpe beheizt wird, erstreckt sich über eine Fläche von etwa 420,46 m² und bietet hochwertige offene Büroflächen für administrative, organisatorische und Managementaufgaben. Mit modernen Büroausstattungen, einschließlich Konferenzraum, Besprechungszimmer und ergonomisch gestalteten Arbeitsbereichen, schafft das Gebäude eine angenehme Arbeitsumgebung für Mitarbeiter und unterstützt die Effizienz betrieblicher Abläufe. Das Bürogebäude verfügt ebenfalls über einen großzügigen Balkonanlage, sowie eine große Fensteranlage zur Straße hin, die für eine helle und freundliche Arbeitsatmosphäre sorgt. Zum Bürogebäude gehören zehn Stellplätze für Mitarbeiter und Besucher. Des Weiteren verfügt das Bürogebäude über eine Terrasse mit einer großzügigen Gartenanlage mit Freisitz und einem Teich, die eine erholsame und ansprechende Arbeitsumgebung bieten.
Zusätzlich zu den Hauptstrukturen zeichnet sich das Gewerbeobjekt durch seinen sehr guten Zustand aus, der durch regelmäßige Wartung und Pflege gewährleistet wird. Die Immobilie bietet somit nicht nur großzügige und moderne Arbeits- und Lagerflächen, sondern auch eine langfristig stabile Investitionsmöglichkeit für geschäftliche Aktivitäten verschiedener Branchen.
Ausstattung
1. Gewerbehalle Baujahr 2008:- ca. 734,31 m² Fläche
- Barrierefreier Zugang
- 2 große Sektionaltore
- eingeschossig tlw. mit Zwischengeschoss
- Flachdach
- Blitzschutzanlage, Telefonanschluss, Starkstromanschluss
- Fenster aus Kunststoff, tlw. aus Aluminium (Isolierverglasung)
2. Lagerhalle Baujahr 2011:
- ca. 300,00 m² Fläche
- Barrierefreier Zugang
- große Schiebetüranlage mit Fenstern
- Flachdach
- Starkstromanschluss
3. Bürogebäude Baujahr 2008:
- 420,46m² Fläche
- Barrierefreier Zugang
- große Glasfront
- eingeschossig tlw. mit Zwischengeschoss
- Aufteilung EG: Eingangsbereich und Empfang, 2 große Büros, Aufenthaltsraum, Flur, 2 WC´s, Teeküche, Technikraum
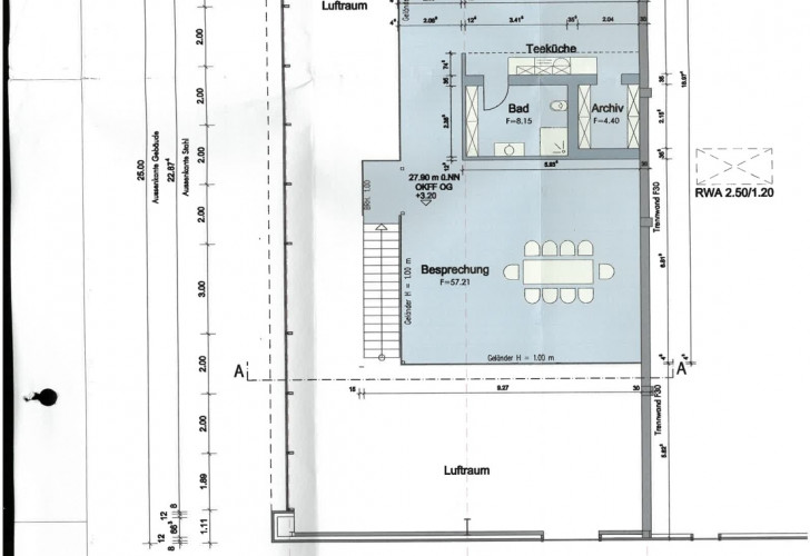
- Aufteilung OG: Empore mit Teeküche, Besprechungsraum, Büro, Bad, Archiv, Balkon
- 10 Stellplätze
- ca. 65 m² großer Freisitz und Teich auf der Gartenanlage
- Alarmanlage, Telefonanschluss
- Flachdach
- Durch eine Wärmepumpe beheizt (Fußbodenheizung)
- Warmwasser zentral über die Heizung
Location
Die Gewerbeimmobilie befindet sich im Gewerbegebiet Genend auf Neukirchen-Vluyner Stadtgebiet. Genend zeichnet sich durch seine verkehrsgünstige Lage und seine Nähe zu verschiedenen wichtigen Verkehrsadern aus.Das Gewerbegebiet ist gut an das regionale und überregionale Straßennetz angebunden. Die Autobahnen A40,A42 und A57 sind nur wenige Fahrminuten entfernt, was eine schnelle Erreichbarkeit von umliegenden Städten wie Duisburg, Düsseldorf und Essen ermöglicht. Dadurch ist die Immobilie für Unternehmen attraktiv, die auf eine gute Anbindung an das Straßennetz angewiesen sind, sei es für den Warentransport oder für Mitarbeiter, die von verschiedenen Standorten anreisen.
In unmittelbarer Nähe der Immobilie befinden sich verschiedene Dienstleistungs- und Gewerbebetriebe mit teilweise Wohnbebauung, was das Gewerbegebiet zu einem lebendigen und attraktiven Standort für Geschäftsaktivitäten macht.
Die Lage in Genend bietet somit eine ausgewogene Mischung aus guter Erreichbarkeit, Infrastruktur und Umfeld, die für Unternehmen verschiedener Branchen von Vorteil ist.
Sonstige Informationen
Selektive - Ihr MehrwertmaklerAls besonderen Service bieten wir für Kaufinteressenten individuelle und unabhängige Finanzierungsberatungen an. Aus einer Vielzahl von Kreditgebern suchen wir für Sie das günstigste Angebot heraus und stellen Ihnen ein persönliches Konzept zusammen. Unsere Beratung ist für Sie selbstverständlich gebührenfrei.
Sie sind bereits Eigentümer einer Immobilie? Wir beraten Sie gerne und unverbindlich über Ihre Möglichkeiten. Ein Immobilienwertgutachten nach § 194 BauGB kann für Sie von unserem zertifizierten Gutachter erstellt werden. Besuchen Sie unsere Homepage www.selektive.de oder wenden Sie sich gleich an Ihren Immobilienprofi unter der Tel. 02841 88 99 60.
Als erstes etabliertes Maklerbüro am Niederrhein konnten wir den Qualitätsnachweis für IVD- Immobilienmakler und Hausverwalter die Verbandszertifizierung in Anlehnung an die DIN ISO 9000 ff erlangen. Seit 1994 sind wir Ihr verantwortungsbewusster Partner in Immobilienfragen.
Alle Angaben zum Objekt erfolgen im Namen unseres Auftraggebers und dienen einer ersten Information. Für die Richtigkeit und Vollständigkeit wird keine Haftung übernommen.
Karte
Die dargestellte Position der Immobilie ist nur eine ungefähre Angabe.










































